Reach our Design Desk 0712 35 688 78
Reach our Design Desk 0712 35 688 78

We understand the importance of building your residence, hence Designing the Residences here at Sakha, is altogether an innovative and experiential journey for clients, we undertake a interaction among clients try to understand individual ersnonality, our design is a process, which keep 'You' (the client) in the centr

The narrative from the client was to have a house that accommodates the complete family, with an essence of nature, thus a courtyard is added to the residence that accommodates all the events, activities of family and the nature.
Plot Size: 1800 Sq Ft












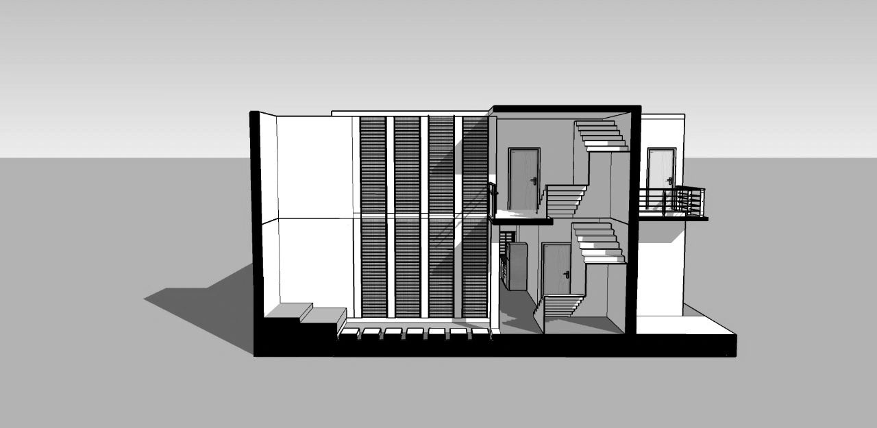
The narrative from the client was to built a residence that is modern in its appearance, yet has a provision for ample space, light and ventilation. thus the design incorporates the arrangement of terraces, which entitle the project as The terrace House.
Plot size: 1500 Sq ft.













The narrative from the client was to built a residence that stay primarily on ground floor, thus the design provide a courtyard that opens on temple area in one side and house on all fourside, the courtyard thus act as a void, that connects the house and is a source for good light and ventilation.
Plot size: 4000 Sq
.jpeg/:/rs=w:370,cg:true,m)
.jpeg/:/rs=w:370,cg:true,m)

The house that opens up to be social, since it is a residence of Family that loves to socialise, Having a need of the house that reflects their identity their celebration, Sakha Crafts the house that is Affable

The house that is composed and kept in the older style, keeping it minimalistic yet modern, the house elevations are framed and designed accordingly.

The house that is climatically designed keeping in the mind the advantage of ventilation, the design is minimalistic yet modern.
